概述
PW-T640图形显示装置是济南帕沃电子技术有限公司研制的消防控制中心火警监控、管理系统,它用于火灾报警及消防联动设备的管理及控制以及设备的图形化显示的装置。
功能特点
1. 自动维护系统的数据通讯,且用户可以通过通讯测试功能随时测试系统数据通讯状态,保证系统可靠运行;
2. 可将报警信息通过局域网传送给远程监控中心;
3. 系统提供多级操作密码,便于系统安全管理,防止误操作;
4. 提供报警辅助处理方案,在紧急情况下提示值班人员完成必要的应急操作;
5. 完善的数据库管理功能,并具有数据备份功能,可将你的数据损失减到最低,保证你的系统安全;
6. 简单、直观、完整的用户图形监控界面,可在不同监视区的设备布置图上切换显示,并通过不同的颜色显示现场设备的报警及动作、故障、隔离等异常信息,对于指挥现场灭火非常有益。
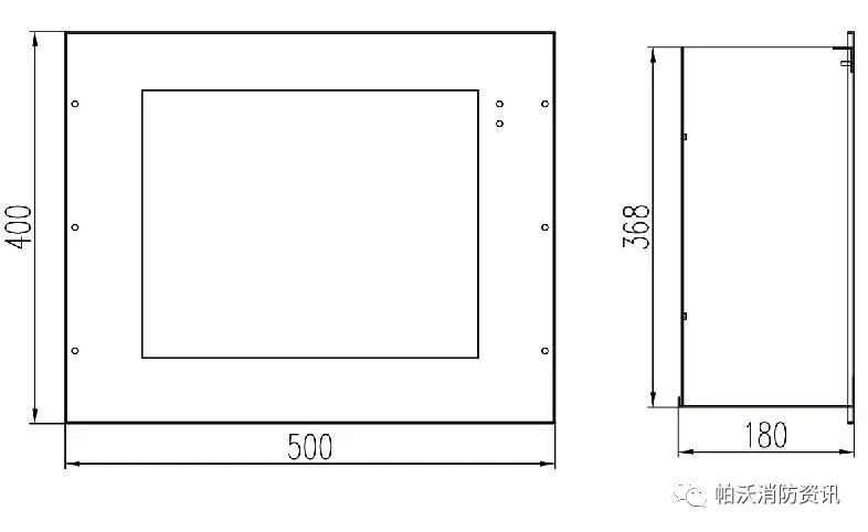
主要技术参数



渝公网安备 50010702503975号





